- Úvod >
- Ponuka nehnuteľností >
- Slovensko
Predaj rodinného domu Devíčie
- Obec
- Devíčie
- Okres
- Krupina
- Kraj
- banskobystrický
- Druh
- rodinný dom
- Typ
- Predaj
Cena dohodou
Popis nehnuteľnosti
Ak hľadáte dom so súkromím, bez susedov, toto je ponuka určená práve Vám.
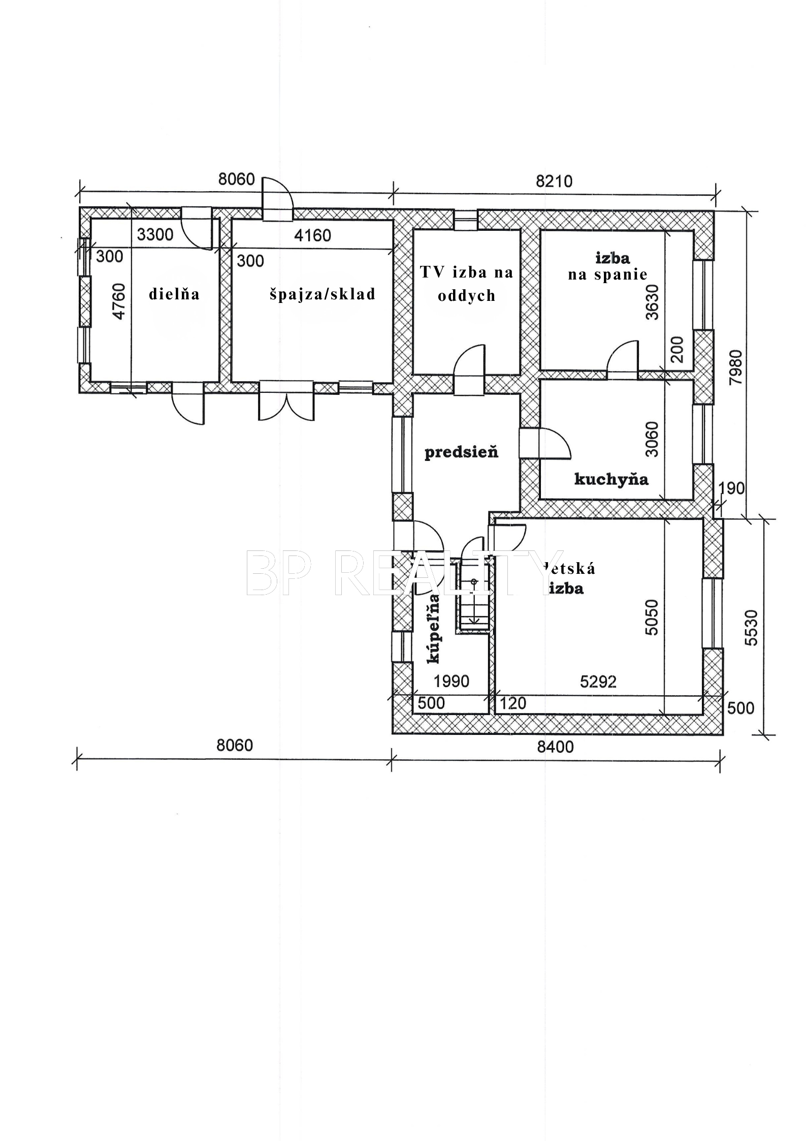
Dom sa nachádza na pozemku s rozlohou 902 m2.
V dome sú 3 izby + kuchyňa s možnosťou vytvorenia ďalších izieb. V roku 2020 prebehla v dome rekonštrukcia, ktorá zahŕňala: výmenu pôvodných okien za plastové, výmenu dverí, nová elektroinštalácia, nové kúrenie, podlahy ( dlažba, laminát, drevená ), stierky atď. Vykurovanie je zabezpečené plynovým kondenzačným kotlom. Dom je podpivničený. Strecha je pôvodná škridla ( nutná výmena).
Na pozemku sa nachádza samostatná garáž, letná kuchyňa so súpisným číslom, veľká terasa s jazierkom a rybami, kopaná studňa 25 m využívaná na polievanie záhrady. Na záhrade sa nachádza veľký skleník, ovocné stromy, ovocné kríky, živý plot, výživové žľaby.
Obec Devíčie sa nachádza 7 km od okresného mesta Krupina. V obci sa nachádza obchod a reštaurácia.
Dom sa nachádza na pozemku s rozlohou 902 m2.
V dome sú 3 izby + kuchyňa s možnosťou vytvorenia ďalších izieb. V roku 2020 prebehla v dome rekonštrukcia, ktorá zahŕňala: výmenu pôvodných okien za plastové, výmenu dverí, nová elektroinštalácia, nové kúrenie, podlahy ( dlažba, laminát, drevená ), stierky atď. Vykurovanie je zabezpečené plynovým kondenzačným kotlom. Dom je podpivničený. Strecha je pôvodná škridla ( nutná výmena).
Na pozemku sa nachádza samostatná garáž, letná kuchyňa so súpisným číslom, veľká terasa s jazierkom a rybami, kopaná studňa 25 m využívaná na polievanie záhrady. Na záhrade sa nachádza veľký skleník, ovocné stromy, ovocné kríky, živý plot, výživové žľaby.
Obec Devíčie sa nachádza 7 km od okresného mesta Krupina. V obci sa nachádza obchod a reštaurácia.
Vlastnosti
- súkromie bez susedov
- dobrá dostupnosť
- čiastočná rekonštrukcia, dom je hneď obývateľný
- možnosť ďalšími úpravami získať ďalšie obytné miestnosti (vedľajšie miestnosti a podkrovie)
- vonkajšia chatka (kuchynka) v rustikálnom štýle s pieckou
- vonkajšie sedenie v príjemnom prostredí blízko jazierka s množstvom rýb
- dostatočný pozemok na pestovanie aj na relax
- dom je napojený na plyn a vykurovanie + ohrev vody je riešené novým kotlom
- čiastočné podpivničenie na skladovanie potravín, vínnu pivnicu a pod.
- potreba opravy strechy (výmena krytiny)
















